M12 Wire Diagram

m12 wire diagram
Liquiphant FTL31 Grenzschalter für Flüssigkeiten | E-direct m12 wire diagram
QR18 Series, M18 Right-Angle Photo sensors|Photo sensors ... m12 wire diagram
Connecting an M7-GX to a Raymarine Multifunction Display ... m12 wire diagram
RS PRO Retro-reflective Photoelectric Sensor 4 m Detection ... m12 wire diagram
Разъём DIN — Википедия m12 wire diagram
Computer Connection Diagram m12 wire diagram
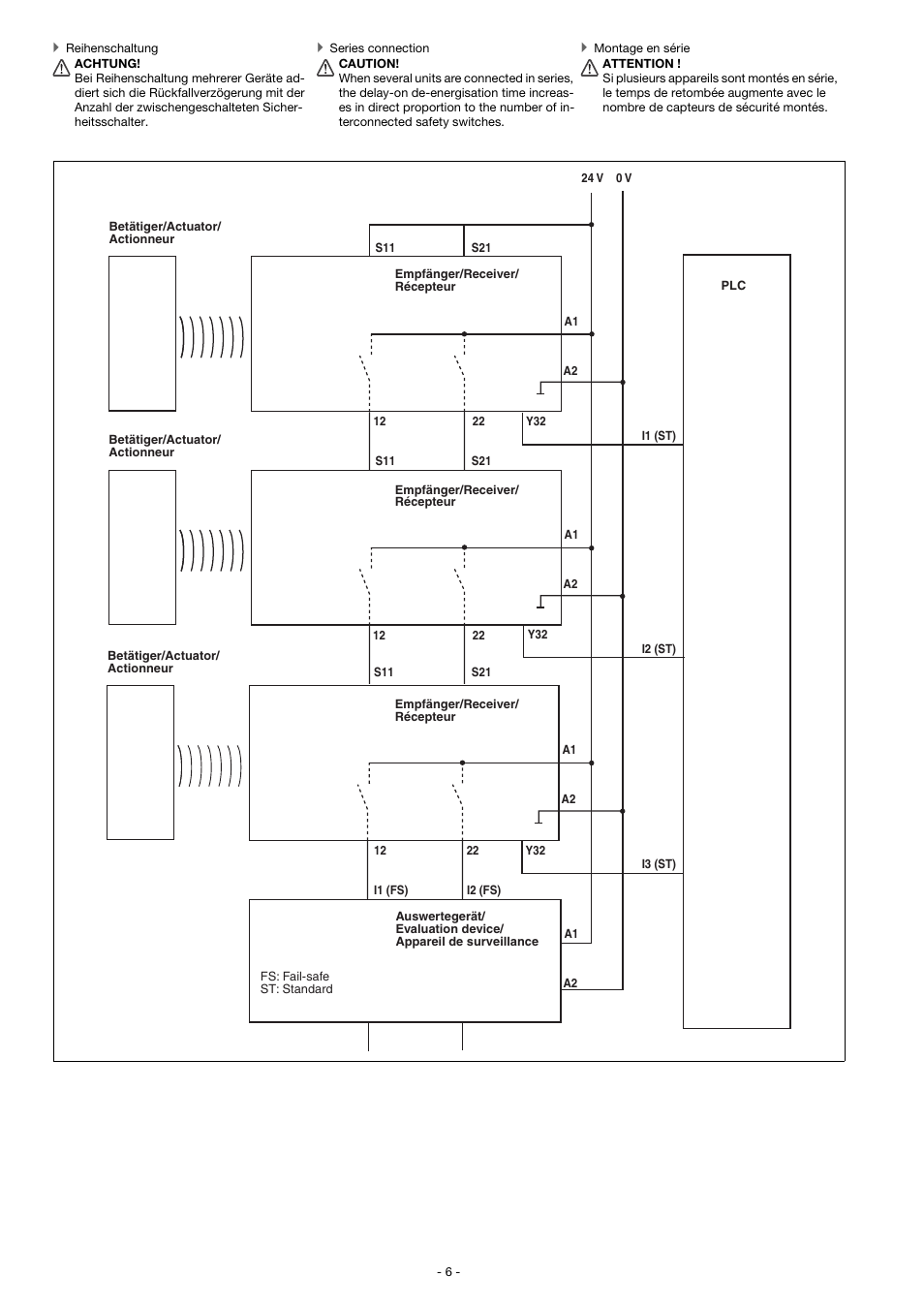
Pilz PSEN cs3.1 M12/8-1.5m User Manual | Page 6 / 16 ... m12 wire diagram
CANIO Hub | CAN IO m12 wire diagram
IIM200 - Sensore induttivo - ifm electronic m12 wire diagram
Keyboard PS/2 pinout diagram @ pinouts.ru m12 wire diagram
Do you keep burning out ignition coils? Here is why ... m12 wire diagram
Resource: Smoke Detectors m12 wire diagram
RJ45 Cat.6 UTP Tool-Less Plug | Snap-In Connector | Networking m12 wire diagram
Color Codes m12 wire diagram
ADS1220 24-bit, 2-kSPS, 4-ch, low-power, small-size delta ... m12 wire diagram
What is IO-Link? - SICK USA BLOG m12 wire diagram
Building the Fully Legal Semi Automatic UZI Carbine ... m12 wire diagram

M12 Wire Diagram


Please create a FREE ACCOUNT to continue reading or download !

Start Your FREE Month!!